VISITE VIRTUELLE
Maison Margaux : vivre le luxe discret au milieu des vignes
Dans l’écrin des grands crus médocains
+ de 450
Maison Margaux : demeure d’exception au cœur des vignobles prestigieux
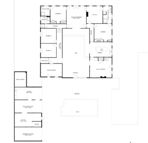
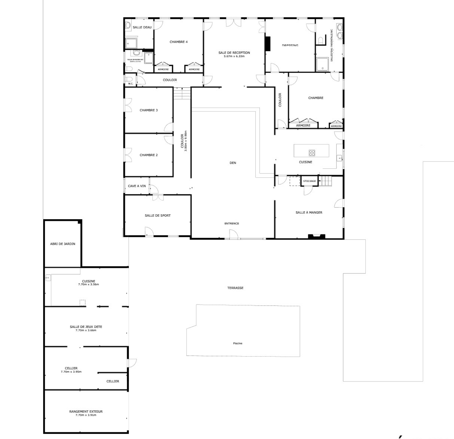
Au cœur des vignes parmi les vins les plus prestigieux, se révèle une demeure d’exception de plus de 500 m², alliant avec justesse l’élégance intemporelle de l’ancien et la modernité des lignes contemporaines. Une allée majestueuse conduit à cette propriété confidentielle, dont la salle de réception de plus de 120 m² impressionne par ses volumes spectaculaires, tandis que la salle à manger, sublimée par une cheminée ancienne et une table sur mesure signée B2agencement, accueille plus de quatorze convives dans une atmosphère chaleureuse. Cinq chambres généreuses, dont une suite parentale dotée d’un vaste dressing et d’une salle d’eau raffinée, prolongent l’expérience de confort et de discrétion.
Un second corps de bâtiment vient enrichir l’ensemble avec une cuisine été/hiver, de grands espaces polyvalents et un appartement indépendant baigné de lumière. Les façades traversantes ouvrent sur une terrasse de 200 m², une piscine élégante et une parcelle de plus de 5 000 m² offrant boulodrome, mini-golf et un terrain de tennis pouvant accueillir un padel, selon vos projets et au gré de vos envies.
Dans ce cadre rare, où la vue embrasse les vignes à perte de vue, l’art de vivre s’exprime avec majesté, discrétion et incomparable raffinement.
À seulement une demi-heure de Bordeaux, l’effervescence citadine s’efface pour révéler une sérénité immédiate, où chaque jour s’imprègne d’un parfum de vacances en continu.
Maison Margaux n’est pas seulement une demeure, c’est une invitation à vivre l’exception et à savourer, chaque soir, le repos mérité après l'intensité d’une journée.
1.399.000
7 chambres
DPE en cours
+ de 50 m2
+ de 5000m2 de terrain
1 Belle cave à vins
1 appartement indépendant
Équipements :
Un Boulodrome
Un Mini-Golf
Un terrain de Tennis
Un piscine
stationnements voitures

